Contra Mixer
For rapid and homogenous mixing of pastes and emulsions. Due to effective heat transfer can also be used for reactions. Capacity (to suit client's requirement).
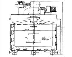
The picture depicts a mixer supplied to a client in Germany for preparing Emulsions - (having viscosity of medium consistency) used as a lubricant in the wire drawing industry.
The brim capacity of the mixer is 3600 liters. The material of construction of contact parts is stainless steel to AISI- 304. The container is also provided with a stainless steel jacket. The annular space between the container and the jacket is provided with flow guides for circulating hot fluid and effecting good heat transfer.
The mixing element are two in numbers, concentric to each other and contra rotating - a) An Anchor with scraper blades running close to the container wall operating at 20 R.P.M. driven by 3 H.P. Motor and b) A set or three pitched bladed turbine type impellers mounted on a central solid shaft operating at 144 R.P.M. driven by 7.5 H.P. Motor.
The drive to both the mixing elements is effected through a specially designed Gearbox having two independent input and two independent output shafts.
We have received communication form the client that the equipment is running satisfactorily for the last 10 months and there has been considerable reduction in mixing time and also the mixing is very homogenous.
Our Products
- Twin Arm Mixer cum Kneader
- Tailor Made Planetary Mixers
- Contra Mixer
- Rubber Cutter Dissolver
- Ribbon Blender
- Ploughshare Mixers
- "V" Blender
- Vertical Rotary Air Lock
- Special Purpose Gearbox
- TEPL Lube Applicator
- Vertical Ribbon Blender
- Continuous Kneader
- Vacuum Double Planetary Mixer
- Schredder
- Disperser
- Cone Screw Mixer
- MFB Mixer





