Sewage Treatment Plants
We Aguapuro Equipments Pvt. Ltd. are leading manufacturer, exporter and supplier of Hydropneumatic in Mumbai, Maharashtra, India.
Aguapuro offers turnkey projects of Sewage Treatment Plants as per local Pollution Control Board norms to make the wastewater reusable.
MBBR based sewage treatment plant
Aguapuro offers MBBR based Sewage Treatment Plants ranging from 5000 lit./day to 500000 lit./day and many more. We offer innovative solutions to treat sewage to achieve standard norms as per Pollution Control Board. Treated water can be reused for flushing and irrigation. By treating sewage with MBBR scheme following parameters can be achieved with COD less than 30 ppm, BOD less than 10 ppm and suspended solids less than 5 ppm.
Advantages of MBBR:
- High efficiency in removal of COD, BOD and suspended solids
- Excellent water quality
- No need of tertiary treatment
- Smaller footprints
- Provides ease for extension for future increase in the waste water quantity.
MBR based sewage treatment plant
Aguapuro offers MBR based Sewage Treatment Plants ranging from 5000 lit./day to 500000 lit./day and many more. We offer innovative solutions to treat sewage to achieve standard norms as per Pollution Control Board. Treated water can be reused for flushing and irrigation. By treating sewage with MBR scheme following parameters can be achieved with COD less than 30 ppm, BOD less than 10 ppm and suspended solids less than 5 ppm.
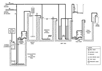
System comprises of:
Coarse and Fine Screening">
Equalization Tank
To equalize the variable hydraulic load
Anoxic Tank
Aeration Tank
Diffused aeration provides oxygen for biomass growth which helps in removal of COD and BOD.
MBR module
Membranes having PVDF material helps to separate sludge ensures much higher quality for treated water free from suspended solids.
For specific Sewage Loads Areation and Membrane Module Tank can be kept common to have minimum foot-prints and ease in operations
MBR treated water can be treated with ozonation and or reverse osmosis to make it potable.
Greywater treatment plant
Greywater is wastewater generated from wash hand basins, showers and baths, which can be recycled on-site for uses such as toilet flushing, landscape irrigation.
Benefits of using grey water;
- Reducing your potable water consumption
- Reducing the amount of sewage discharged to the ocean or rivers
- Reducing your water bills
- A healthier garden, especially during drought periods.
The easiest way to use grey water is by treating it with ozonation and filtration system. System comprises of;
Ozonation
Disinfection with ozone helps in minimizing microbial load.
Pressure Sand Filter
Remove suspended solids.
Activated Carbon Filter
Remove colour, odour and any other inorganic impurity.
Chlorine Dosing
















