Email Us : mak@maknet.co.in
Call Us : +91-9822059172
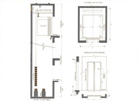
Mak Manual Door Elevators are very carefully designed considering vertical transportation requirements in a building. This traffic analysis decides the load & speed of the lift. These lifts are all fitted with the most advanced micro computer lift controls which ensure very high speed with smoothest travel & perfect leveling It also has option of center opening type, telescopic type, glass type doors etc. MAK also give you gearless machine option for highest level of smoothness, very less power consumption and no requirement of machine room. We have fully equipped local office and a trained team of personnel ready to answer your any query.
| LOAD | CAR INSIDE | LIFE WELL | ENTRANCE | |||
| Persons | Kg | A | B | C | D | E |
| 6 | 408 | 1100 | 1000 | 1850 | 1400 | 700 |
| 8 | 544 | 1100 | 1300 | 1950 | 1700 | 800 |
| 10 | 680 | 1300 | 1350 | 2050 | 1750 | 800 |
| 13 | 884 | 1300 | 1700 | 2100 | 2100 | 900 |
| 16 | 1088 | 1500 | 1750 | 2350 | 2150 | 1000 |
| 20 | 1360 | 1500 | 2000 | 2350 | 2400 | 1000 |